Proyectos
Estudio
Proyectos
Estudio
JUAN LINIADO +
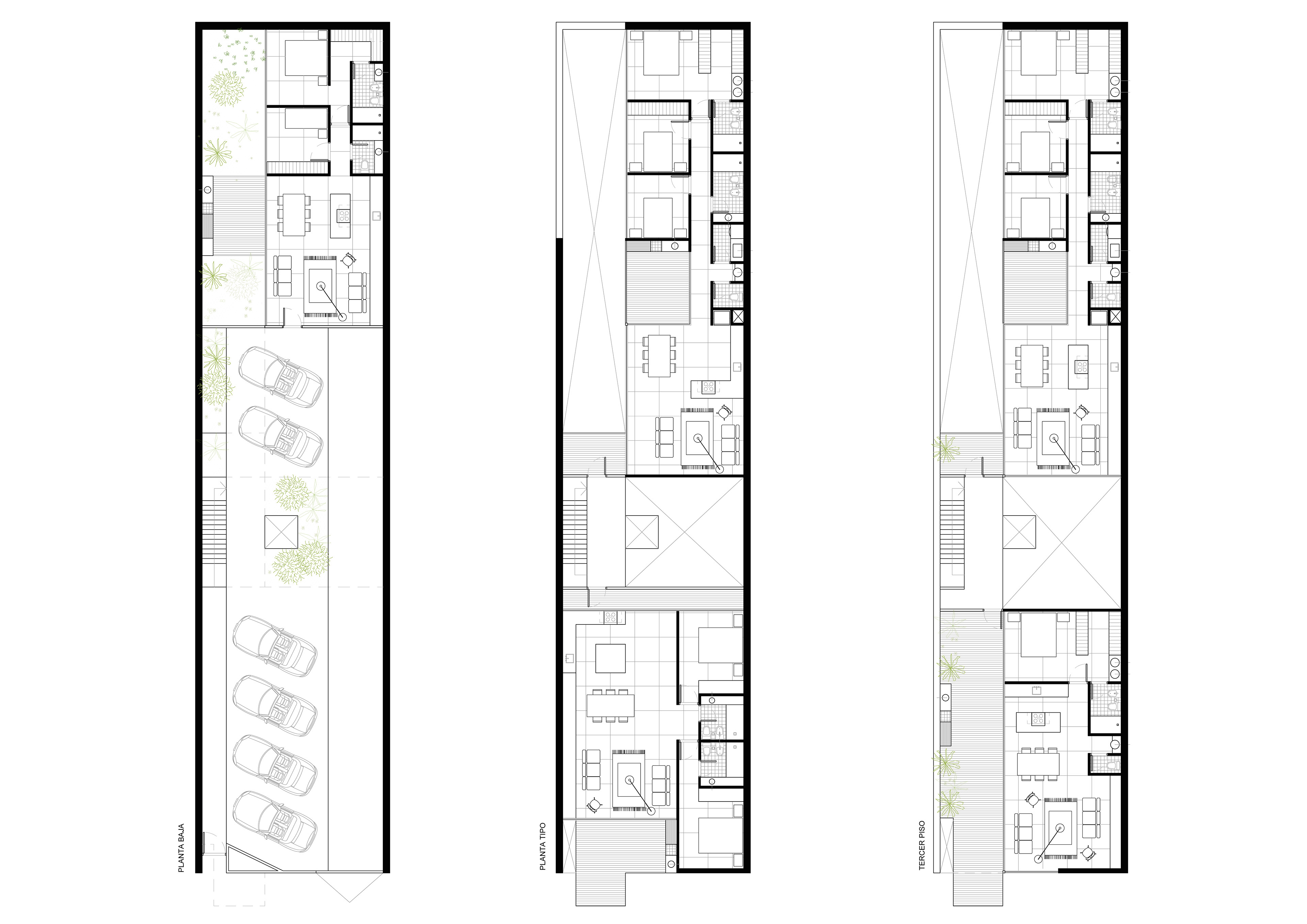
Locación Coghlan, Buenos Aires, Argentina
Año 2025
Programa Vivienda
Equipo Juan Liniado, Lucia Saavedra
↑
Back to Top